LOGO 首页 OA教程 ERP教程 模切知识交流 PMS教程 CRM教程 技术文档 其他文档  
 
网站管理员

给你一个仓库,如何做好仓库规划?分享拿过来就能直接用的仓库布局技巧!

admin
2024年12月6日 17:55 本文热度 6328

什么是仓库布局?我们应该如何做好仓库布局设计呢?

 如何做好仓库布局规划?

仓库库位的合理规划是提高仓库运作效率的关键。在新仓建设与旧仓优化中,如何做好库区库位的规划和实施?本文将和大家一起从以下几个方面进行探讨:

01 仓库规划原则

1、空间利用最大

仓库规划最主要的原则就是最大化限度的利用平面空间与立体空间,在保障作业的效能、安全的前提下尽可能多的规划储位,如:安装高位货架、楼层货架等。

2、操作效能最高

仓库规划要考虑如何提升现场作业的效率,保持系统操作与现场作业的一致性、便捷性,实现一次性作业,减少装卸搬运次数,缩短搬运作业距离。

3、流程标准最规范

仓库规划要充分考虑库内作业流程、存储标准、堆码规则,减免日后仓库标准化建设的工作量,提升仓库作业效能与可视化管理。

4、仓库安全最佳

仓库规划要考虑仓库消防、商品存储、库内作业等方面的安全因素,如:卸货保护、人机分流、安全警示物等。

5、规划成本最省

仓库规划要因地制宜,充分利用现有资源和外部条件,依据仓库的规划设计要求和商品的储存属性,最大限度地节省仓库规划成本,如:电、水、网、供暖、消防、升降台等。

6、柔性发展最优

仓库规划还要保留一定的柔性发展空间,日后可根据业务量变化与经营模式的改变而迅速调整、适用,既节省的成本,又保障了业务发展。

 02 仓库规划准备工作

一、信息的收集:

1)业务基本数据:

  • 产品数据:产品SKU码、长宽高、重量、效期;
  • 库存数据:近1年的历史库存数据,观察各月份的库存量变化。
  • 出入数据:近1年各个品类的出库、入库明细及货量变化。
  • 仓库规划要根据行业看1-3年或1-5年变化趋势,设计缓存区或储位存量。
2)仓库本身相关的信息:库房的净高、库区内面积的大小,支撑柱子的数量,每一跨度的宽度,两跨之间的距离等;
3)作业所使用到的工具:是否用托盘,托盘的尺寸,是否用叉车或夹抱机,机器的长度,宽度,转弯半径是多少等;
4)使用平面仓,货架仓,还是立体仓;
5)出入库车辆的大小,出入库库门数量,站台数量,等;
6)货品的分类,各品类的包装尺寸大小,堆码的层数,是否严格先进先出,是否拆零出库等;
以上只是列举信息收集中的部分事项,可根据自身业务需求,收集更多的信息。
二、数据的处理和分析:
对于以上收集到的数据进行处理和分析,并对结果数据进行图表格式化,以直观的方呈现出来。

03 仓库规划布局

1、功能区域划分

    • 入库区:用于接收新到货物,进行初步检验和登记。
    • 存储区:根据货物的性质、尺寸、重量、周转率等进行分类存放。例如,设置快流区和慢流区,分别存放周转快和周转慢的货物。
    • 拣选区:方便拣选货物进行出库操作。
    • 出库区:对拣选好的货物进行复核、打包和发货。
    • 退货区:专门存放退货或不合格的货物。

2、通道设计

    • 通道设置考虑作业工具、拣货密度以及商品热销情况。如,一般液压车的宽度为1.8米,推车为1.4-1.6米,拣货车A类产品区1.8-2.2米,B类产品区1.6米,C类产品区1.2-1.4米等。
通道设置方法的方法:
1)主通道要正对仓库正门或仓库中心线位置,同时要参考库内结构因素(柱子、横梁、消防设备等);
2)拣货通道的尺寸,要考虑搬运设备转弯半径与存放堆码方式,部分整存库位还要保留盘点通道;
3)行人、消防、设备、逃生等通道,在规划功能区、库位时就要考虑,以提高仓库面积的利用率。
那么?仓储货架在设计时通道宽度一般留多少才算合适呢?
1、单向运行的通道:单向运行的通道一般是指通道只能有一辆叉车作业,那么单向运行通道预留的宽度=叉车宽度(包含货物宽度)+0.6米(叉车安全作业预留距离,防止撞到货架)
2、双向运行的通道:双向运行的通道一般是指通道同时能有两辆叉车作业,那么双向运行通道预留的宽度=叉车宽度(包含货物宽度)*2(同时作业)+0.9米(叉车安全作业预留距离,防止撞到货架)

3、仓库布局

设置仓库时,可以采用三种主要布局,包括U型仓库,L型仓库或I型(又称工字型),具体取决于可用空间和预计在仓库中进行的操作。

1)U型仓库

U型仓库是最常见的仓库类型,其布局采用半圆形形状。入库装卸月台和出库装卸月台位于平行侧,而存储和拣货区位于仓库的中心。

U型仓库是小型仓库的最佳布局,因为它使操作毫不费力地进行。它有效地分离了仓库内的交通流,简化了物料和人员的流动。

2)I 型仓库

此布局采用矩形形状,其中入库装卸月台位于矩形的另一端,出库装卸月台位于矩形的另一端。存储空间通常位于矩形的中间。

I型(又称工字型)仓库的优点是,它通过确保整个仓库区域得到利用来优化仓库空间。它还限制了货物的来回流动,从而最大限度地减少了瓶颈。

I型(又称工字型)布局可能不适合小型仓库,因为它需要良好的装卸区域空间。

3)L型仓库

L型仓库是一种不常见的仓库布局,其中进出码头以90度角在相邻的两侧,货物以L形流动。存储区域位于L形的角落。

与I型(又称工字型)布局一样,这种布局最大限度地减少了货物的来回移动,并有效控制了拥堵。但是,它并没有优化空间,并且在L型仓库布局中需要大量空间才能实现顺畅的交通流量。

在选择要设置的仓库布局类型时,请在考虑可用空间的同时牢记所有预期功能。永远记住要考虑到未来的增长,这样才能避免在业务开始增长时重新设计。

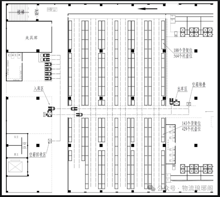
最后形成仓库布局图:

4、其他安全要求

(1) 消防安全设备 - 仓库配置的消防设备要符合消防、安监部门的要求,喷淋、消防栓、灭火器、消防站等;

(2) 资质安全管控 - 对入库商品必须具备、提供相关质量安全的报告与认证,如:商品质量报告、流通检疫报告、进出口报告等。

(3) 存储安全要求 - 保障库内存储商品的安全管理,如:存储条件、堆码要求、效期监控以及库内加工包装安全。

(4) 作业安全要求 - 仓库所有收发存作业安全管理,如:装卸、搬运、机力、设备、防护等安全管理。

(5) 社会安全要求 - 疫情防控与交通安全,等等。

总结:

如何做好仓库规划,提高仓库面积利用率?需要大家不断学习和实践。


该文章在 2024/12/10 10:12:24 编辑过
关键字查询
相关文章
正在查询...
点晴ERP是一款针对中小制造业的专业生产管理软件系统,系统成熟度和易用性得到了国内大量中小企业的青睐。
点晴PMS码头管理系统主要针对港口码头集装箱与散货日常运作、调度、堆场、车队、财务费用、相关报表等业务管理,结合码头的业务特点,围绕调度、堆场作业而开发的。集技术的先进性、管理的有效性于一体,是物流码头及其他港口类企业的高效ERP管理信息系统。
点晴WMS仓储管理系统提供了货物产品管理,销售管理,采购管理,仓储管理,仓库管理,保质期管理,货位管理,库位管理,生产管理,WMS管理系统,标签打印,条形码,二维码管理,批号管理软件。
点晴免费OA是一款软件和通用服务都免费,不限功能、不限时间、不限用户的免费OA协同办公管理系统。
Copyright 2010-2026 ClickSun All Rights Reserved  粤ICP备13012886号-2  粤公网安备44030602007207号